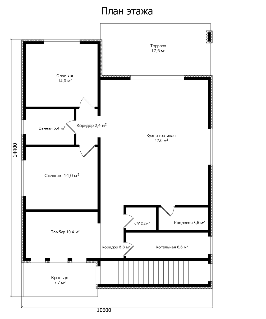
Проект современного одноэтажного дома с удобной и функциональной планировкой, продуманной для комфортного проживания всей семьи.







Общая площадь: Общая площадь: 112 м²
Высота потолков
3.2
Материал стен
Железобетон, ППУ, армпанель, гибкая керамика
Компактный и продуманный дом с чётким зонированием: просторная кухня-гостиная объединяет общие зоны, а две спальни расположены отдельно для тишины и приватности. Удобная прихожая с тамбуром защищает от холода, а наличие котельной и кладовой добавляет функциональности. Дополнительный санузел и крыльцо делают планировку завершённой и комфортной для загородного проживания.
Это совсем просто! Назначьте встречу (можно удаленно по видеосвязи) с одним из наших архитекторов и на основании ваших идей он создаст индивидуальные планировки.
Полный комплекс работ и материалов для строительства вашего дома

Мощное основание, которое не боится времени
Мы заливаем полноценную ж/б плиту с густым армированием (14-я арматура). Это фундамент с огромным запасом прочности — дом будет стоять неподвижно на любом грунте десятилетиями.

Сухой и теплый
Стены цоколя защищены слоеным «пирогом» из ППУ, битума и мембраны Planter. Это гарантирует, что внизу всегда будет сухо и тепло, а вы сэкономите время и деньги на подготовке стен к отделке.

Капитальный монолит для тишины и безопасности
Монолитный железобетон — это максимальная прочность. Такие стены не горят, выдерживают любые нагрузки и отлично отсекают уличный шум, чтобы в доме всегда было спокойно.

Красивое и долговечное решение
Мы соединили ППУ-утепление, армпанель и гибкую керамику. Материалы буквально «срастаются» друг с другом, поэтому фасад не трескается, не выцветает и не требует ремонта долгие годы.

Стильный алюминиевый профиль для комфорта
Мы ставим качественные алюминиевые окна. Они выглядят современно, не деформируются со временем и отлично держат тепло даже в сильные морозы.

Герметичная крыша без сквозняков и протечек
Благодаря бесшовному слою ППУ и качественной мембране, кровля получается полностью герметичной. Тепло не уходит наружу, а вы экономите до 30% на счетах за отопление.
Строим с заботой о каждой детали. Гарантируем качество на каждом этапе строительства.
гарантии
Официальная гарантия по договору на все виды работ и конструктивные элементы дома
на весь проект
Персональный менеджер сопровождает вас на каждом этапе строительства
видеоконтроль
Круглосуточное видеонаблюдение и охрана объекта с онлайн-доступом для вас
технадзора
Процедуры технического надзора после каждого ключевого этапа строительства
Оставьте заявку, наш специалист свяжется с вами и пришлет ТОП-3 готовых проекта под ваши пожелания!

Ответы на часто задаваемые вопросы о строительстве монолитных домов
Не нашли ответ на свой вопрос?